Büyük Ebatlı Çelik Kapı – VISS Pivot

Aşırı Ölçülerde Maksimum Performans

700 kg’a kadar kanat ağırlığı taşıyabilen sistem, büyük ve ağır camlı kapılar için idealdir.

Termal Yalıtımlı Cephe Uyumlu Tasarım

Cephe sistemiyle bütünleşen yapısı sayesinde yüksek enerji performansı sunar.

Tasarım Özgürlüğü

İçe veya dışa açılım, tek ya da çift kanatlı seçenekler ve engelsiz geçiş imkanı sağlar.

VISS Pivot Door, termal yalıtımlı cephe sistemleriyle entegre çalışan, tersinir açılımlı, büyük ebatlı pivot kapı çözümüdür.
Yüksek mukavemetli çelik profilleri ve estetik detaylarıyla mimari projelere prestij katar.

Yangın Güvenliği ve Estetik Bir Arada

Büyük Ebatlı Çelik Kapı – VISS Pivot

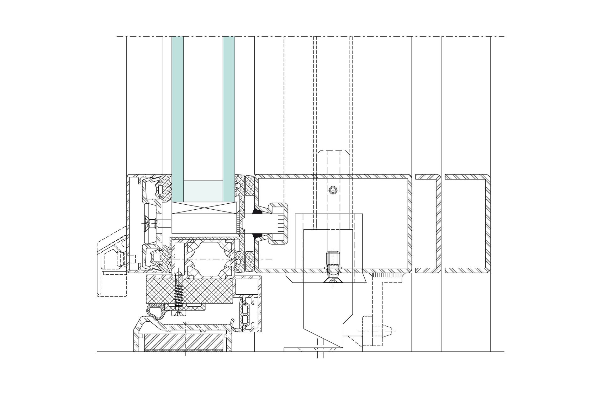
VISS Pivot Kapılar, 2000 mm x 6000 mm’ye kadar ölçülerde üretilebilen, yüksek taşıma kapasiteli, termal yalıtımlı ve tersinir açılımlı (içe/dışa) özel tasarım pivot kapı sistemidir.

Aygök Mimari Metal tarafından uygulanan bu sistem; müze, galeri, showroom ve prestijli ticari projelerde büyük açıklık ihtiyaçlarını estetikten ödün vermeden karşılar.

ÖzellikDeğer / Açıklama
Maks. Kanat Ölçüsü2000 mm (G) x 6000 mm (Y)
Maks. Kanat Ağırlığı700 kg
Açılım TipiPivot, içe veya dışa açılır
Kanat TipleriTek ve çift kanatlı
Isı YalıtımıTermal yalıtımlı cephe sistemi
Cam Kalınlığı17 – 52 mm
MalzemeGalvanizli veya ham çelik
KaplamaToz boya veya fırın emaye
DonanımYüksek taşıma kapasiteli pivot menteşe sistemi
Uygulama AlanıCephe, beton ve yığma duvar sistemleri
Isı Geçirgenlik (Uf)≥ 2.0 W/m²K
Su SızdırmazlığıSınıf 5A (200 Pa)
Hava SızdırmazlığıSınıf 4 (600 Pa)
Rüzgâr DayanımıSınıf 2 (800 Pa)
DayanıklılıkEN 12400 Class 4 (50.000 çevrim)
Yangın DavranışıB-s2, d0 / CR sızdırmazlık sistemi ile B-s1, d0
SertifikalarEN 14351-1 (CE)

 

Ürün Dosyası

Teknik Şartnameler &
Teknik Çizimler

Sertifikalı yangın kapısı teknik şartname ve DWG çizimler

Jansen çelik sistemler BIM modelleri

Çelik profil çözümlerimizle modern mimaride fark yaratıyoruz.

Projeniz için doğru çelik profil çözümünü birlikte bulalım.