Camlı Yangın Kapısı – Jansen Economy 50 E / EW – 30/60/90/120

Minimalist Görünüm
50 mm derinlik ve ince profil yapısı, cam yüzeylerin ön plana çıkmasını sağlar.
Esnek Güvenlik Seviyeleri
E30 / EW30 / E60 / EW60 kapılar ve E120’ye kadar sabit camlı bölmelerle farklı yangın senaryolarına uyum sağlar.
Çok Amaçlı Kullanım
Yangın korumalı, duman kontrollü veya standart cam kapı olarak aynı sistem altyapısı kullanılabilir.
Jansen Economy 50, yangına dayanıklı cam kapılar ve camlı bölme sistemleri için geliştirilmiş, mimari olarak zarif ve teknik olarak güçlü bir çelik sistemdir.
Aynı profil sistemi kullanılarak:
- Yangın kapısı
- Duman sızdırmaz kapı
- Standart iç mekan cam kapısı
oluşturulabilir. Bu sayede projelerde tasarım bütünlüğü korunur.
Camlı Yangın Kapısı – Jansen Economy 50 E/EW - 30/60/90/120
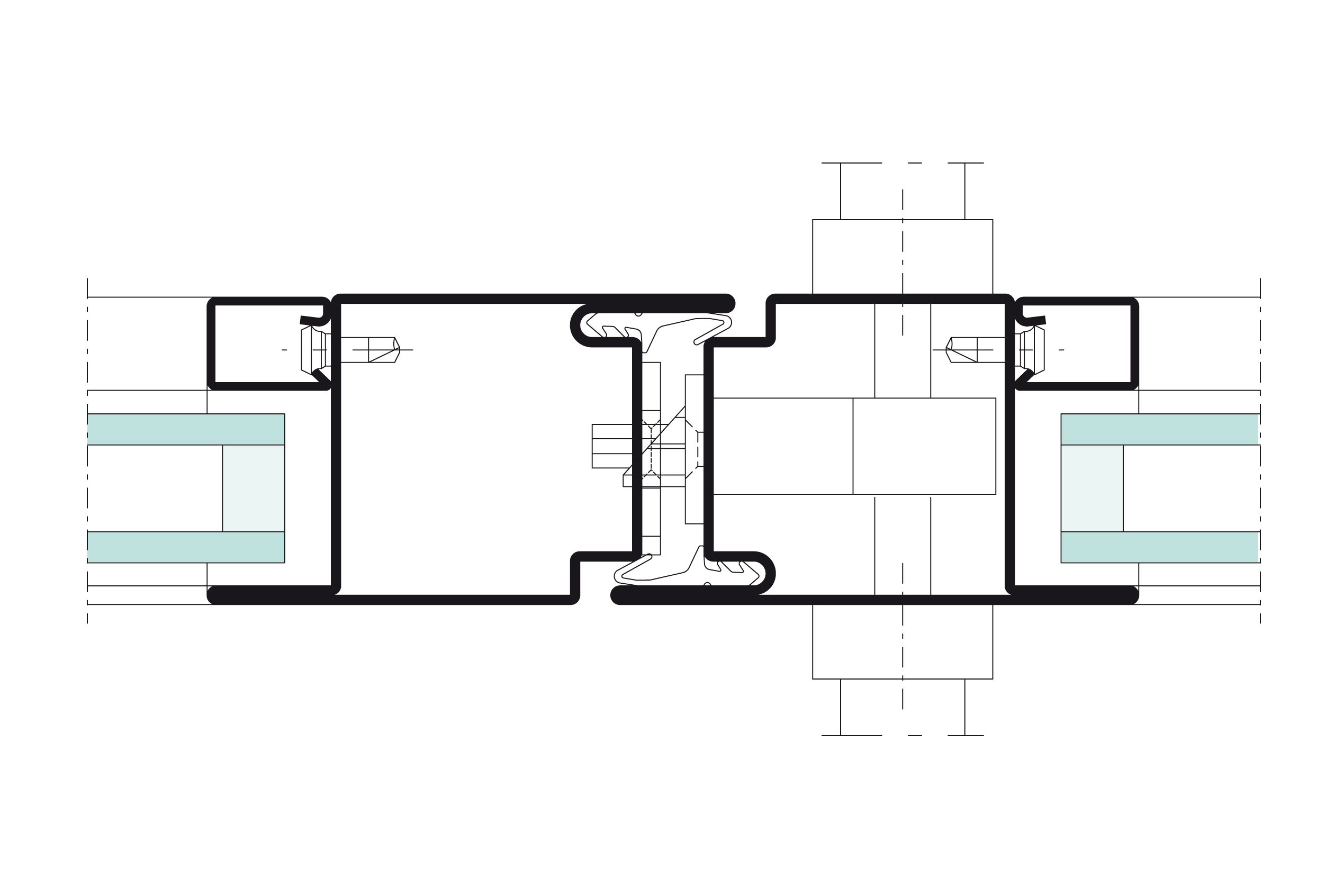
Jansen Economy 50, yalnızca 50 mm profil derinliği ile maksimum şeffaflık sunarken E30’den E120’ye kadar yangın dayanımı sağlayabilen, yüksek performanslı çelik camlı kapı ve bölme sistemidir.
Dar yüzey genişliği sayesinde Janisol ve Economy serilerinin mimari çizgisiyle tam uyumludur.
| Özellik | Değer / Açıklama |
|---|---|
| Profil Derinliği | 50 mm |
| Yangın Dayanımı (Kapı) | E30 / EW30 / E60 / EW60 |
| Yangın Dayanımı (Sabit Cam) | E120’ye kadar |
| Malzeme | Kaplamasız veya galvanizli çelik, paslanmaz çelik 1.4404 |
| Yüzey Kaplama | Toz boya, fırın boya, ham veya polisajlı paslanmaz çelik |
| Eleman Tipleri | Tek ve çift kanatlı kapılar, yan panelli ve üst sabit camlı kombinasyonlar, camlı bölmeler |
| Camlama | Orta camlama, kuru camlama veya macunlu camlama |
| Maks. Kapı Yüksekliği | 3.80 m (tek kilitli kapılarda) |
| Montaj | Betonarme veya hafif bölme duvarlara bağlantı |
| Donanım | Çelik ve paslanmaz menteşeler, entegre kapı kapatıcı, çok noktalı kilit (motorlu opsiyon), panik bar |
| Ek Seçenekler | Yangın + duman korumalı (Economy 50 RS), sadece duman kontrollü veya yangınsız versiyon |
| Sertifikalar | EN 1634-1, EN 1634-3, DIN 18095, EN 1191, EN 1125 / EN 179 |
Çelik profil çözümlerimizle modern mimaride fark yaratıyoruz.
Projeniz için doğru çelik profil çözümünü birlikte bulalım.