Isı Yalıtımlı Çelik Kapı / Pencere – Janisol HI

Üst Düzey Isı Yalıtımı
Sabit camlarda Uw 0.69 W/m²K, açılır kanatlarda Uw 0.8 W/m²K değerlerine kadar ulaşan performans.
İnce Profil, Güçlü Taşıyıcılık
Dar yüzey genişliklerine rağmen yüksek statik dayanım ve büyük açıklıklara uygun yapı.
Yüksek Performans Testleri
Hava, su ve rüzgâr geçirimsizliği testlerinde en üst sınıflara ulaşan sistem performansı.
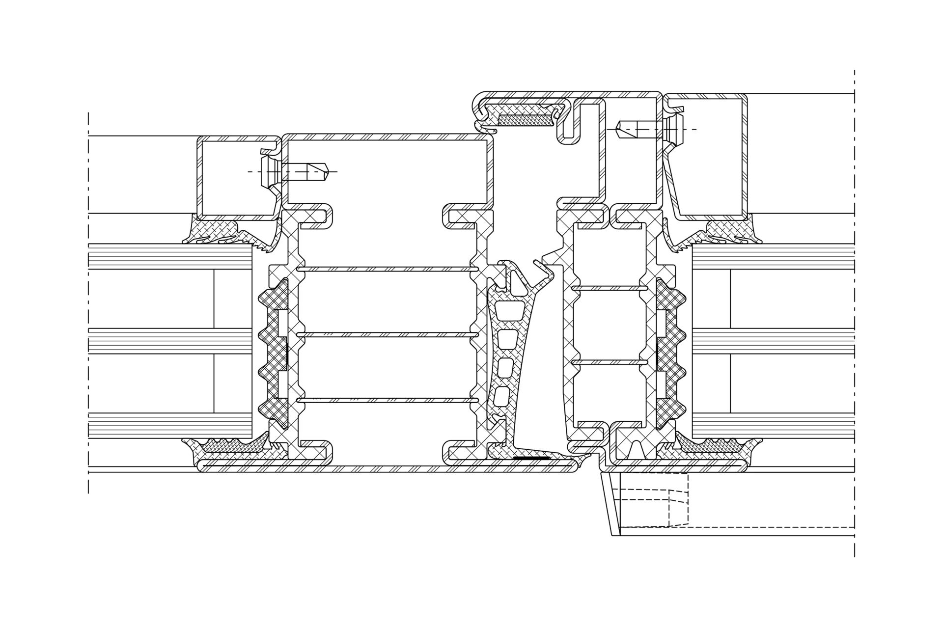
Janisol HI, ısı yalıtımlı çelik pencere ve sabit cam uygulamaları için geliştirilmiş, yüksek performanslı ve estetik odaklı bir sistemdir.
Cam elyaf takviyeli yüksek teknoloji ısı bariyerleri sayesinde hem yapısal dayanım hem de enerji verimliliği sağlar.
Isı Yalıtımlı Çelik Kapı / Pencere – Janisol HI
Janisol HI, estetik çelik profilleri ileri seviye ısı yalıtım teknolojisiyle birleştirerek, modern mimaride enerji verimliliği ve zarif tasarımı aynı sistemde sunar.
Aygök Mimari Metal tarafından uygulanan bu sistem, üç camlı çözümlerle ultra düşük ısı geçirgenlik değerlerine ulaşarak sürdürülebilir yapı projeleri için ideal bir çözüm oluşturur.
| Özellik | Değer / Açıklama |
|---|---|
| Profil Derinliği | 90 mm (kanat), 80 mm (sabit cam) |
| Malzeme | Galvanizli çelik |
| Cam Yapısı | Üçlü cam (67 / 57 mm dolgu kalınlığı) |
| Açılım Tipleri | Yan açılır, çift açılım (tilt & turn), üstten asılı, alttan açılır, sabit cam |
| Eleman Tipleri | Tek ve çift kanatlı pencereler, yan panelli ve üst sabit camlı kombinasyonlar |
| Donanım | Gizli mekanizma (180 kg) veya yüzey montajlı mekanizma (150 kg), entegre veya harici motorlu açılım |
| Maks. Kanat Yüksekliği | 2.8 m |
| Maks. Kanat Ağırlığı | 180 kg |
| Isı Geçirgenlik (Uw) | Sabit cam: ≥ 0.69 W/m²K / Açılır kanat: ≥ 0.8 W/m²K |
| Ses Yalıtımı | Rw 46 dB’ye kadar |
| Hava Sızdırmazlığı | Sınıf 4 (600 Pa) |
| Su Sızdırmazlığı | Sınıf E750 |
| Rüzgâr Dayanımı | C4 (1600 Pa) |
| Güvenlik | RC1N – RC3 arası hırsızlık direnci |
| Sertifikalar | EN 14351-1, EN 14024, EN 1627–1630, DIN 18008-4 |
| Sürdürülebilirlik | EPD (Çevresel Ürün Beyanı) mevcut |
Çelik profil çözümlerimizle modern mimaride fark yaratıyoruz.
Projeniz için doğru çelik profil çözümünü birlikte bulalım.